COZVIJAR cortijo 55.000 €
Descripción
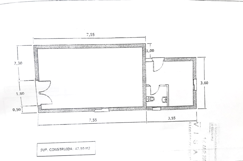
NAVE DE APEROS LEGALIZADA en Cozvijar, muy bien comunicada y en un paraje único y con mucho encanto junto al arroyo. La parcela tiene una superficie de 1.800 m2 según nota simple. La construcción de 47m2 se distribuye en salón-cocina con chimenea de 34,7 m2. Además cuenta con baño y trastero. La propiedad cuenta con suministro de agua potable. y se encuentra localiza muy cerca del casco urbano. ::::::::::::: El PVP indicado no incluye Gastos de Notaria, Registro de la propiedad ni Impuestos que se pagarán según ley . Honorarios de agencia del comprador no incluidos. Las superficies expresadas en esta página son aproximadas y tienen carácter descriptivo.
| Precio |
55000€ |
| Habitaciones |
0 |
| Baños |
1 |
| Metros construidos |
47 m2 |
| Metros solar |
1800 m2 |
| Eficiencia energetica |
EXENTO |
| Localidad |
COZVIJAR |
| Provincia |
Granada |